今やエントリークラスのPCケースですら最低限の準備ができているケーブルマネジメント機構。拡張性が高いPCケースほど、多くのケーブルが行き交うだけに、特に組み込み時に利便性を実感する箇所でもある。特にFLUX PROは、電源ユニットの搭載方向を変える設計を採用するなど、どのモデルよりもケーブルマネジメントに注力している。

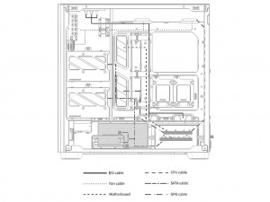
ユニークなのは、マニュアル(P18-P19)に電源ユニットの搭載方向による推奨ケーブルレイアウトが、設計図のように描かれていること。必ずしもこれに従う必要はないが、配線図を見る限り最適かつ無駄のないレイアウトだけに、結局このカタチになるであろう事が想像できる。
|
|
| マニュアル(P18-P19)に記された、電源ユニット搭載方向別のケーブルレイアウト例 | |
|
| 出荷時より多くのケーブルが行き交うマザーボードトレイ背面。ケーブルマネジメント機構の軸となるのはグロメット付きスルーホールとロゴ入り面ファスナー |
|
|
| M/B側面に沿って設けられたグロメット付きスルーホール | Antecロゴ入り面ファスナー(大)は計4個 |
|
|
| PSU Shroud天板付け根のスルーホールにもケーブルを保護するグロメットが付く | ATX補助電源ケーブルやファンケーブルに便利な上部スルーホール |
| |
| ATX補助電源ケーブルの配線に便利な面ファスナー(小) |
最終の組み込みセッションを行う前に、FLUX PROの付属品を見ておこう。外装パッケージを開き本体を取り出すと、幅約145mm、長さ約450mm、高さ約40mmの茶箱が同梱されている。この中に間仕切り付き半透明の「Tool Box」やその他付属品が収納されていた。 そしてやや簡易的ながらマニュアルが付属し、別紙で電源ユニット横置き搭載に関する4パターンが記された「Power Supply Installation」が挟まれていた。
|
|
ネジ類が中心となるTool Boxの中身を確認すると、およそ自作PCで使われるネジがほとんどで、モデル特有と言えば「3.5″HDD Screws」くらいだろう。Cable Tie(結束バンド)は必需品であり、別途「Power Supply Bracket」「PSU Shroud Cover」といった金属製パーツも収納されていた。
|
|
| Motherboad Screws/2.5"SSD Screws(x26) | Power Supply Screws(x4) |
|
|
| Standoffs(x3) | 3.5"HDD Screws(x8) |
|
|
| Standoff Mounting Tool(x1) | Fan Screws(x12) |
|
|
| PSU Extension Cable Screws(x2) | PSU Shroud Cover Screws(x4) |
|
|
| Cable Tie | Tool Box |
|
|
| Power Supply Bracket | PSU Shroud Cover(x2) |